035-3034200
info@gerberthansman.nl
Verkocht

Phohistraat 64 1276 EJ Huizen

Omschrijving

Op een centrale locatie, direct nabij het winkelcentrum Phohi, het Warandapark en diverse uitvalswegen, ligt dit comfortabele en moderne 3-kamer HOEK-APPARTEMENT met balkon en berging in de onderbouw. Het appartement bevindt zich op de 3e verdieping en heeft vanuit de woonkamer een prachtig uitzicht over het groen van het Warandapark. Het woonoppervlakte bedraagt 70m².

De toegang van het appartement is via een centrale hal met intercominstallatie, brievenbussen, liftinstallatie en trapopgang. Aan de andere zijde van het gebouw is eveneens een entree met trappenhuis en toegang tot de berging in de onderbouw.

Dit appartement is verzorgd afgewerkt en kan zonder verbouwingen betrokken worden. Zeker uw bezichtiging waard!

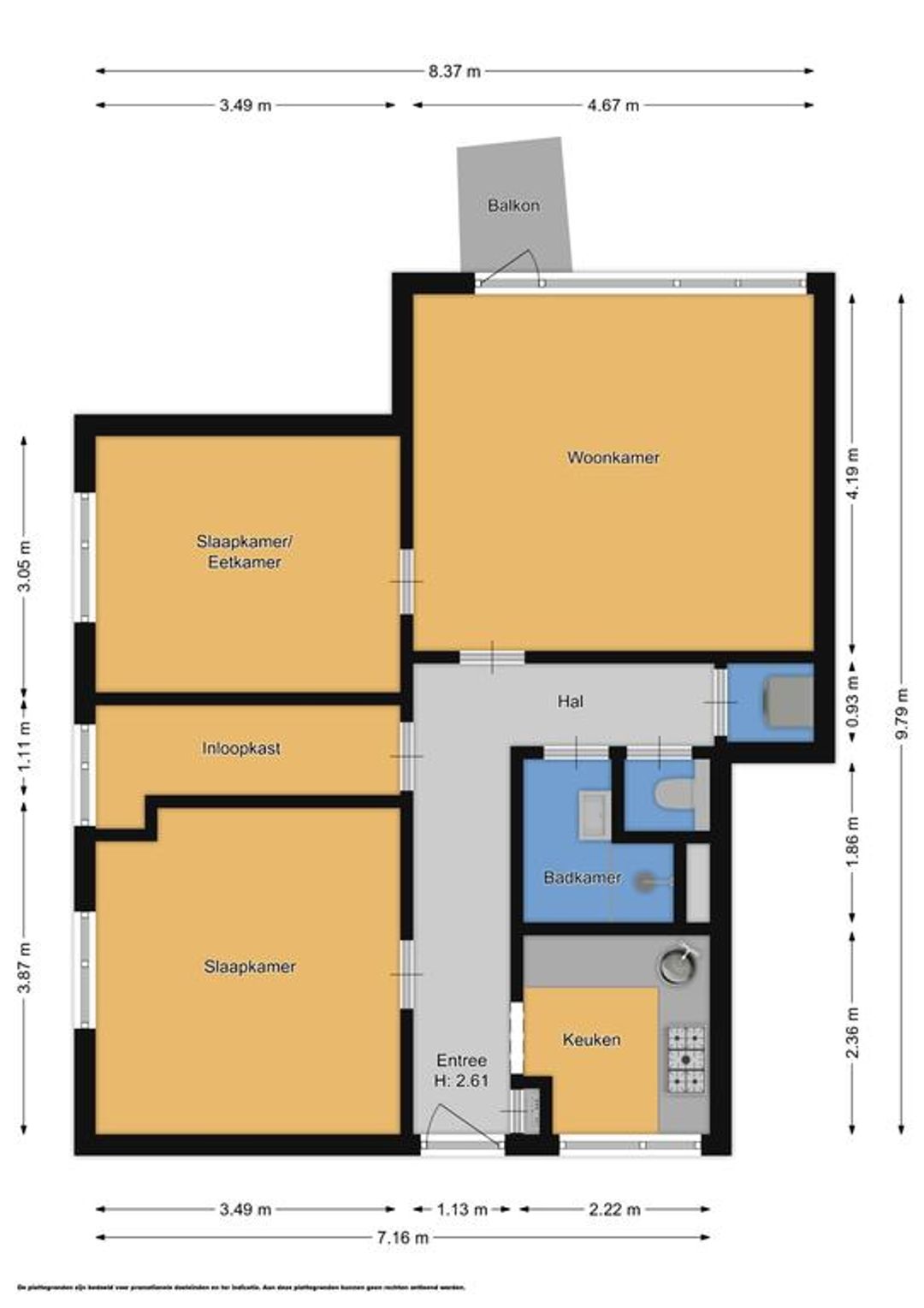
De indeling van het appartement is als volgt:
Entree, hal, meterkast, keuken voorzien van inbouwapparatuur (5-pits gas kooktoestel, afzuigkap, vaatwasmachine, koelkast, vriezer, combi magnetron/oven en nieuwe elektrische geiser), ruime slaapkamer, praktische inloop-bergkast met veel bergruimte, lichte woonkamer met deur naar balkon en aangrenzende 2e slaapkamer (of eetkamer), modern zwevend toilet, ruime bergkast met opstelplaats voor wasmachine, badkamer met douche en vaste wastafel met meubel. Het gehele appartement heeft een laminaat vloerafwerking.
De woonkamer en het balkon zijn aan de zonkant (het Zuiden) gelegen.

Kenmerken:
– Woonoppervlakte: 70m²;
– Ruime parkeergelegenheid op het privé parkeerterrein aan de achterzijde;
– Balkon op het zonnige Zuiden gelegen;
– Appartement met 2 ruime slaapkamers;
– Ideale ligging direct nabij oude dorpskern van Huizen, het park, de bossen en de uitvalswegen met goede verbinding richting Amsterdam en Utrecht;
– Winkelcentrum op de begane grond van het appartementengebouw;
– Afgesloten toegang met intercominstallatie;
– Nieuwe meterkast in 2020;
– Verwarming middels blokverwarming en warm water middels nieuwe elektrische geiser;
? De servicekosten bedragen: € 251,– per maand, waarin voorschot voor de stookkosten, watergebruik, opstalverzekering, reservering onderhoud, liftonderhoud en glazenwassen buitenzijde zijn inbegrepen.

Lees de volledige omschrijving

Kenmerken

Algemeen

Aangeboden sinds
6+ maanden
Status
Verkocht
Aanvaarding
In overleg
Soort woonhuis
Appartement, galerijflat
Soort bouw
Bestaande bouw
Bouwjaar
1963
Soort dak
Bitumineuze dakbedekking
Ligging
In woonwijk

Oppervlakten en inhoud

Wonen
70 m²
Gebouwgebonden Buitenruimte
2 m²
Externe bergruimte
5 m²
Inhoud
233 m³

Indeling

Aantal kamers
3 kamers (2 slaapkamers)
Aantal badkamers
1 badkamer
Badkamervoorzieningen
Douche, wastafel, wastafelmeubel
Aantal woonlagen
1
Voorzieningen
Lift

Energie

Energielabel
F
Isolatie
Dubbel glas
Verwarming
Blokverwarming
Warm water
Geiser eigendom

Kadastrale gegevens

Perceelnaam
Huizen C 7575
Eigendomssituatie
Volle eigendom
Perceel
HZN00-C-7575

Parkeergelegenheid

Soort parkeergelegenheid
Op eigen terrein
Bekijk alle kenmerken

Media

Overige media

Wil je meer informatie?

Maak een afspraak en laat je geheel vrijblijvend informeren over de mogelijkheden.

Neem contact op Bel ons: 035-3034200